Ficha
Ático en venta en Torremolinos, Málaga (Centro)
REF. 1870

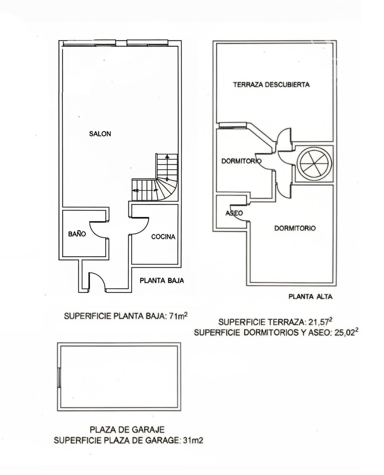
71 m2

52 m2

2

1

1

2
venta: 425.000 €
Descripción

Se vende ático dúplex en excelente estado de conservación en una de las zonas más demandadas. Situado en un bloque de solo 21 años que acaba de ser totalmente restaurado y pintado en sus exteriores.


Características Principales:


Salón XL: Reforma integral ampliando el salón original (se eliminó un tabique de dormitorio y terraza) para crear un espacio diáfano y acogedor.


Dormitorios: 2 dormitorios en la planta superior.


Baños: 1 baño con ducha en planta baja y 1 aseo en suite en el dormitorio principal.


Exteriores: Amplia terraza privada en la planta superior, ideal para solárium o zona chill-out.


Almacenamiento: Gran capacidad gracias a sus armarios empotrados a medida.


Parking: Plaza de garaje subterránea incluida en el precio.


Ubicación y Comunicaciones:

Entorno muy silencioso y residencial. Excelente conexión a pie: 10 min al centro/tren y 12 min a la playa de La Carihuela por el nuevo sendero peatonal.


En cumplimiento con el Decreto 218/2005, de 11 de octubre, por el que se aprueba el reglamento de información al consumidor en la compraventa y arrendamiento de viviendas en Andalucía, se informa al cliente o interesado que los gastos notariales, registrales, I. T. P. , honorarios de intermediación financiera, así como otros gastos inherentes a la compraventa no están incluidos en el precio. Los honorarios de la agencia inmobiliaria SI están incluidos en el precio

Información al consumidor: Datos y medidas orientativas, facilitados por la propiedad sujetos a comprobación. Precio y condiciones definitivas según documentación e información precontractual (incluido DIA) y contrato/escritura que se formalice. Salvo error tipográfico, la oferta está sujeta a disponibilidad y cambios de precio.

Características
Precio Venta 425.000 €
Precio/m² 5.986
Año de construcción 2004
Construidos 71 m2
Útiles 62 m2
Dormitorios 2
Baños 1
Cocina Amueblada
Altura/Planta 2
Estado Buen estado
Ascensor
Garaje
Calificación Energética (C) VER
Agua
Escalas de eficiencia


-
-

Tu agente
Oficina
Contáctanos

Si deseas más información sobre esta propiedad, por favor, rellena el formulario.

 Sí, he leído y/o acepto las Condiciones de uso y la Política de privacidad